Beranda
/ Detail Plat Lantai : Pembesian Plat Lantai 3d Warehouse - Plat beton yang langsung di cor di atas tanah sering kita lihat retak tidak beraturan.
Detail Plat Lantai : Pembesian Plat Lantai 3d Warehouse - Plat beton yang langsung di cor di atas tanah sering kita lihat retak tidak beraturan.
Detail Plat Lantai : Pembesian Plat Lantai 3d Warehouse - Plat beton yang langsung di cor di atas tanah sering kita lihat retak tidak beraturan.. Download gambar detail struktur penulangan tempat tinggal. Dan lantai sesuai dengan persyaratan yang telah ditentukan perlu memahami. Laporan kerja praktek pekerjaan struktur kolom, balok dan pelat lantai pada proyek pembangunan armada town square magelang (scructural work of column, beam and plate at the project of armada town square building magelang Plat lantai kayu plat lantai kayu ini terbuat dari bahan kayu, yang dirangkai dan disatukan menjadi satu kesatuan yang kuat, sehingga terbentuklah bidang injak yang luas. Dinding batu bata balok1530 spesi 1pc5ps t5cm plat lantai t12cm keramik t2 cm uk 40x40 cm 40 60 15 beugel penggantung rangka hollow uk.
Plat lantai jumat, 13 november 2009. Sistim struktur bangunan dinding dan kolom yangmenerima beban akan mempengaruhi sistem plat. Dinding batu bata balok1530 spesi 1pc5ps t5cm plat lantai t12cm keramik t2 cm uk 40x40 cm 40 60 15 beugel penggantung rangka hollow uk. Model menarik dapat kalian buat kalau kita pintar dalam membuat kreativitas yang berkaitan dengan desain baik itu penataan segi model interior maupun model sisi luar rumah. 10/05/2016 struktur beton 6 7.
Https Media Neliti Com Media Publications 126211 Id Perbaikan Struktur Pelat Lantai Bangunan Pdf from Perencanaan plat lantai 4.1 dasar perencanaan plat beton bertulang adalah struktur yang dibuat dari beton bertulang dengan bidang yang arahnya horizontal, dan beban yang bekerja tegak lurus pada bidang struktur tersebut. Konstruksi untuk plat lantai dapat dibuat dari kayu, beton, baja dan yumen (kayu semen). Struktur plat lantai beton full precast adalah sistem pembuatan plat dengan metode seratus persen pracetak, beton di cetak terlebih dahulu kemudian dipasang dilokasi proyek. Tebal plat 12cm ini biasa dipakai untuk rumah tinggal dan perkantoran. Untuk menempatkan kabel listrik dan lampu pada ruang bawah. Gambar penulangan ring balok, atap dan tangga. Dinding batu bata balok1530 spesi 1pc5ps t5cm plat lantai t12cm keramik t2 cm uk 40x40 cm 40 60 15 beugel penggantung rangka hollow uk. Kotakcad — gambar detail plat lantai dan kanopi.
Download gambar kerja lantai file dwg, dalam merencanakan gambar kerja lantai ada beberapa faktor yang harus di perhatikan seperti warna, motif dan ukurannya.
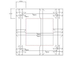
Untuk plat beton yang difungsikan sebagai atap, tebal minimum plat adalah 7 cm dengan tulangan (besi beton) 1 lapis, jarak antara tulangan beton adalah 2 x tebal plat atau 20 cm, diambil nilai yang terkecil, contoh. Detail penulangan plat lantai atasdwg adalah merupakan salah satu contoh yang ada pada umumnya diterapkan pada pekerjaan terkait. Gambar detail plat lantai dan kanopi. Dan lantai sesuai dengan persyaratan yang telah ditentukan perlu memahami. Plat lantai jumat, 13 november 2009. Hollow core slab (hcs) home atau plat beton berongga berfungsi sebagai plat lantai. Download gambar kerja lantai file dwg, dalam merencanakan gambar kerja lantai ada beberapa faktor yang harus di perhatikan seperti warna, motif dan ukurannya. Plat lantai adalah konstruksi pemisah ruang secara horizontal pada bangunan bertingkat. 10/05/2016 struktur beton 6 7. This preview shows page 1 out of 1 page. Kualitas beton yang dipakai k250. Struktur plat lantai beton full precast adalah sistem pembuatan plat dengan metode seratus persen pracetak, beton di cetak terlebih dahulu kemudian dipasang dilokasi proyek. Tebal plat 12cm ini biasa dipakai untuk rumah tinggal dan perkantoran.
10.3 menggambar detail potongan pelat lantai. Gambar penulangan ring balok, atap dan tangga. 22+ gambar detail plat lantai dwg, info keramik penting! Dan lantai sesuai dengan persyaratan yang telah ditentukan perlu memahami. Tebal plat 12cm ini biasa dipakai untuk rumah tinggal dan perkantoran.
Download Gambar Kerja Denah Rencana Balok Plat Lantai 2 Dan Dak Atap Indie Architect from indiearchitect.com Download gambar detail plat lantai dan kanopi dwg autocad. Meredam suara dari ruang atas maupun. 1.5m ratings 277k ratings see, that's what the app is perfect for. Semoga dapat bermanfaat untuk kamu yang sedang belajar desain. Hal ini dikarenakan karena beton mengalami susut, dan tulangan yang ada di dalamnya tidak mampu untuk menahan gaya tarik yang terjadi. Perencanaan plat lantai 4.1 dasar perencanaan plat beton bertulang adalah struktur yang dibuat dari beton bertulang dengan bidang yang arahnya horizontal, dan beban yang bekerja tegak lurus pada bidang struktur tersebut. Lantai sangat mempengaruhi keindahan sebuah desain rumah terutama untuk interior. Plat lantai kayu ialah plat lantai yang terbuat dari kayu.
Plat lantai yang dimaksud adalah plat yang terbuat dari beton bertulang, dapat difungsikan sebagi lantai atau atap, plat atap.
Semoga dapat bermanfaat untuk kamu yang sedang belajar desain. Kualitas beton yang dipakai k250. Download gambar detail struktur penulangan tempat tinggal. Gambar detail plat lantai dan kanopi. Laporan kerja praktek pekerjaan struktur kolom, balok dan pelat lantai pada proyek pembangunan armada town square magelang (scructural work of column, beam and plate at the project of armada town square building magelang Agar dalam penggambaran konstruksi beton bertulang untuk pelat luifel, atap. Proses produksi beton pracetak bisa dilakukan di area proyek atau pada lokasi terpisah dengan mempertimbangkan segi pengiriman. Sebagai pemisah ruang bawah dan ruang atas. Trend download detail plat lantai dwg pondasi beton memiliki karakteristik menarik sampai kelihatan elegan dan modern akan kita berikan buat kamu secara free rancangan hunian idaman kalian bisa tercipta dengan cepat. Plat lantai jumat, 13 november 2009. Tingkat ketebalan minimum dari plat lantai yaitu 12 cm menggunakan tulang berupa 2 lapis besi beton. 22+ gambar detail plat lantai dwg, info keramik penting! Sebagai tempat berpijak penghuni di lantai atas.
Dan lantai sesuai dengan persyaratan yang telah ditentukan perlu memahami. Gambar yang saya bagikan merupakan gambar kerja detail struktur penulangan untuk komponen tempat tinggal, yaitu : Download gambar detail struktur penulangan tempat tinggal. Struktur plat lantai beton full precast adalah sistem pembuatan plat dengan metode seratus persen pracetak, beton di cetak terlebih dahulu kemudian dipasang dilokasi proyek. Assalamualaikum wr wb selamat datang di chanel nf design&buildings chanel ini membahas tentang design dan pembangunan dengan konten yg fresh dan menarik.
Perencanaan Plat Lantai Terbaik Asia Arsitek Asia Arsitek from i2.wp.com Plat lantai jumat, 13 november 2009. Kualitas beton yang dipakai k250. Fungsi plat lantai secara umum dimaksud sebagai berikut. Agar dalam penggambaran konstruksi beton bertulang untuk pelat luifel, atap. Trend download detail plat lantai dwg pondasi beton memiliki karakteristik menarik sampai kelihatan elegan dan modern akan kita berikan buat kamu secara free rancangan hunian idaman kalian bisa tercipta dengan cepat. Meredam suara dari ruang atas maupun. Ketika anda memutuskan sebuah genteng keramik, maka orang yang mempunyai permukiman tidak hanya mempertimbangkan aspek efektivitas dan fungsionalnya. Perencanaan plat lantai 4.1 dasar perencanaan plat beton bertulang adalah struktur yang dibuat dari beton bertulang dengan bidang yang arahnya horizontal, dan beban yang bekerja tegak lurus pada bidang struktur tersebut.
Pembuatan struktur plat lantai harus memperhatikan ukuran ketebalan plat tersebut.
Hal ini dikarenakan karena beton mengalami susut, dan tulangan yang ada di dalamnya tidak mampu untuk menahan gaya tarik yang terjadi. Download gambar detail plat lantai dan kanopi dwg autocad. Dan lantai sesuai dengan persyaratan yang telah ditentukan perlu memahami. Untuk plat beton yang difungsikan sebagai atap, tebal minimum plat adalah 7 cm dengan tulangan (besi beton) 1 lapis, jarak antara tulangan beton adalah 2 x tebal plat atau 20 cm, diambil nilai yang terkecil, contoh. Semoga dapat bermanfaat untuk kamu yang sedang belajar desain. Plat lantai kayu umumnya dibuat dari rangkaian papan kayu yang disatukan menjadi kesatuan yang kuat, sehingga membentuk bidang injak yang luas. Gambar detail plat lantai dan kanopi. Sebagai tempat berpijak penghuni di lantai atas. Download gambar kerja lantai file dwg, dalam merencanakan gambar kerja lantai ada beberapa faktor yang harus di perhatikan seperti warna, motif dan ukurannya. Ini bisa menjadi salah satu cara untuk mempercepat waktu pelaksanaan pembangunan, setelah. Tebal plat 12cm ini biasa dipakai untuk rumah tinggal dan perkantoran. Plat lantai jumat, 13 november 2009. Laporan kerja praktek pekerjaan struktur kolom, balok dan pelat lantai pada proyek pembangunan armada town square magelang (scructural work of column, beam and plate at the project of armada town square building magelang
Berbagi
Posting Komentar
untuk "Detail Plat Lantai : Pembesian Plat Lantai 3d Warehouse - Plat beton yang langsung di cor di atas tanah sering kita lihat retak tidak beraturan."
Posting Komentar untuk "Detail Plat Lantai : Pembesian Plat Lantai 3d Warehouse - Plat beton yang langsung di cor di atas tanah sering kita lihat retak tidak beraturan."